Kolbaek Mark 45 1000Px

Kolbæk Mark 45, 8800 Viborg

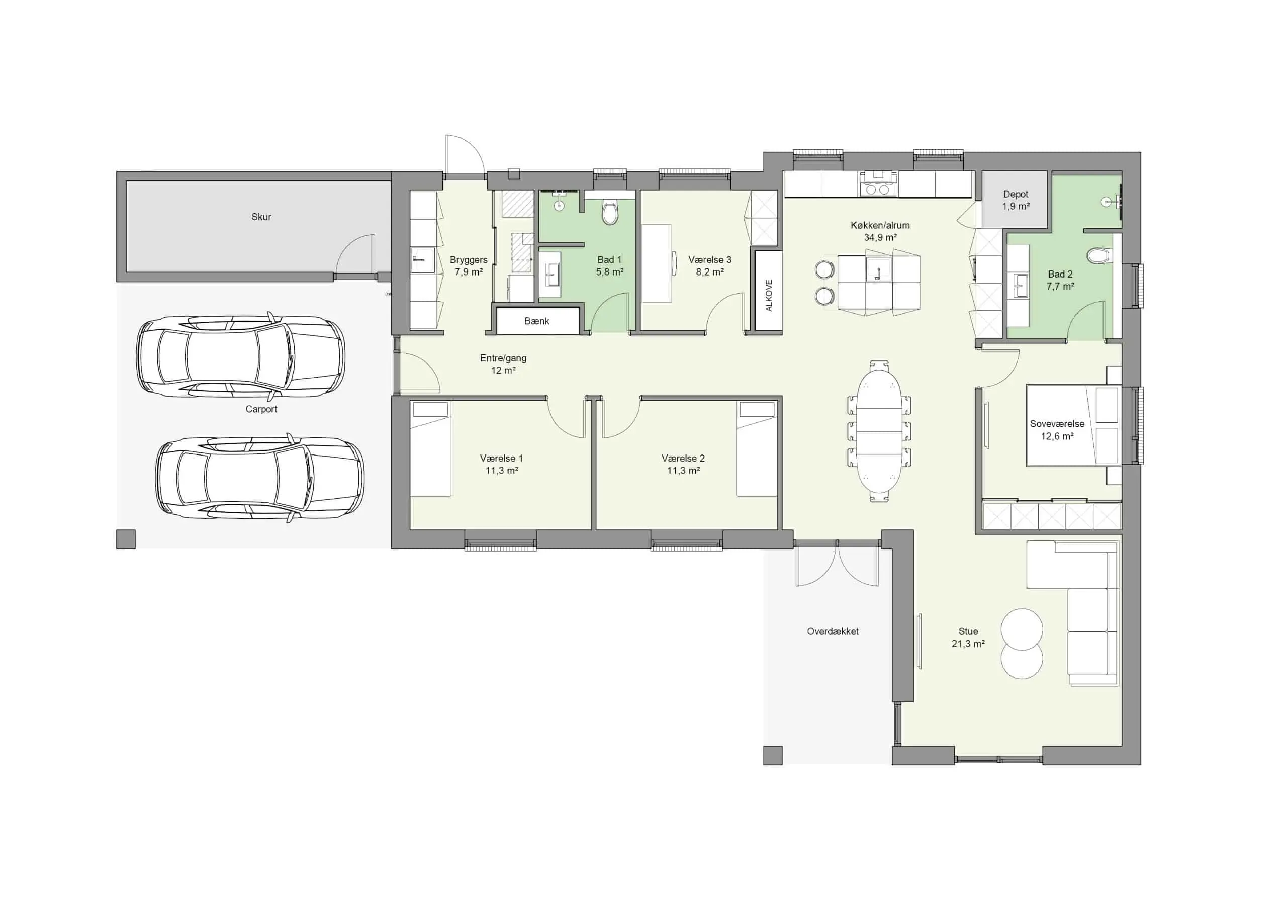
Dette flotte og velindrettede vinkelhus på 165 m2 er beliggende i det smukke Hald Ege. Her er flotte landskaber, masser af dyreliv, spændende historie og et rent og uspoleret miljø. Med denne bolig er der masser af naturoplevelser i vente – og samtidig i cykelafstand til Viborg by.

Dette flotte og velindrettede vinkelhus på 165 m2 er beliggende i det smukke Hald Ege.

Kolbæk Mark er en flot og velindrettet vinkelhus på 165 m2. Det er beliggende i det smukke Hald Ege. Her er flotte landskaber, masser af dyreliv, spændende historie og et rent og uspoleret miljø. Med denne bolig er der masser af naturoplevelser i vente – og samtidig i cykelafstand til Viborg by.

Boligen er med sadeltag, og har en 50 m2 stor carport med integreret skur og indgang til husets entré. Fra entréen har du adgang til et rummeligt og moderne bryggers, lækkert badeværelse samt tre gode værelser.

Herefter bevæger du dig ind i husets hjerte – det store
lækre køkken/alrum med indbygget alkove. Køkkenet har desuden indbygget depotrum, der giver rig mulighed for opbevaring. Herfra er der åben adgang til en hyggelig og intim stue. Fra alrummet kan du endvidere gå ind i voksenafdelingen som indeholder soveværelse med tilhørende bad.

Info ikon Værd at vide
165 m² vinkelhus med sadeltag
50 m² carport inkl. integreret skur
13,5 m² overdækket terrasse med udgang fra køkken/alrum
Loft til kip i køkken/alrum, stue og overdækning
Luft-til-vand varmepumpe

Plantegning